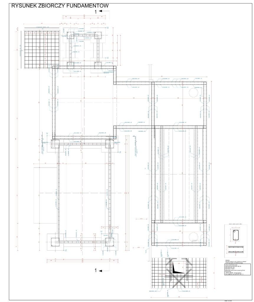
Czyszczalnia i suszarnia zboża – rzut fundamentów