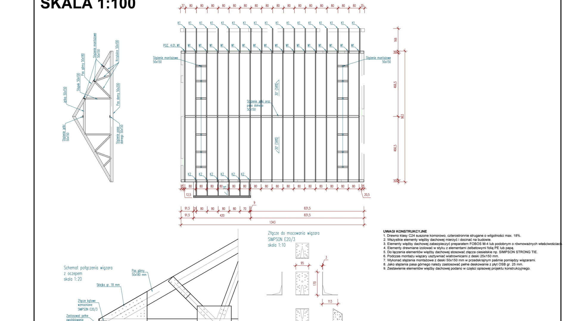
Dom jednorodzinny – rzut więźby dachowej