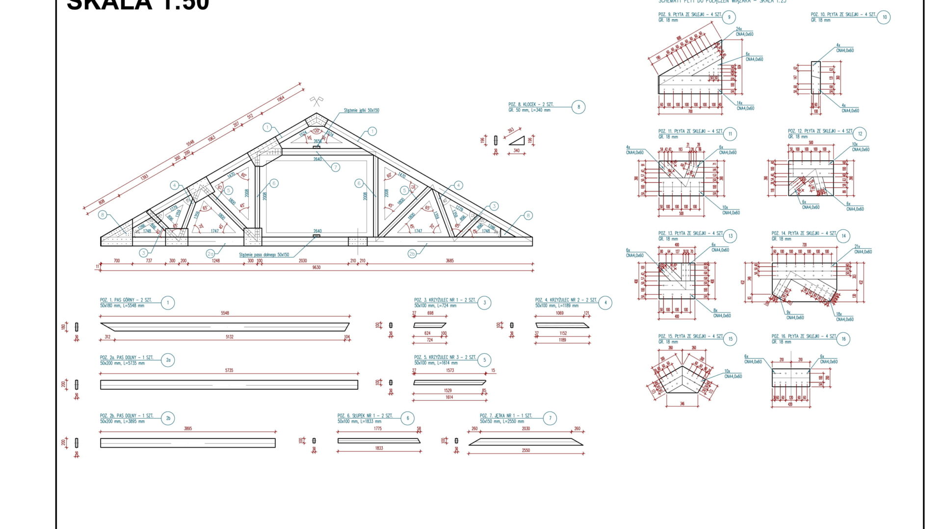
Dom jednorodzinny – wiązar drewniany