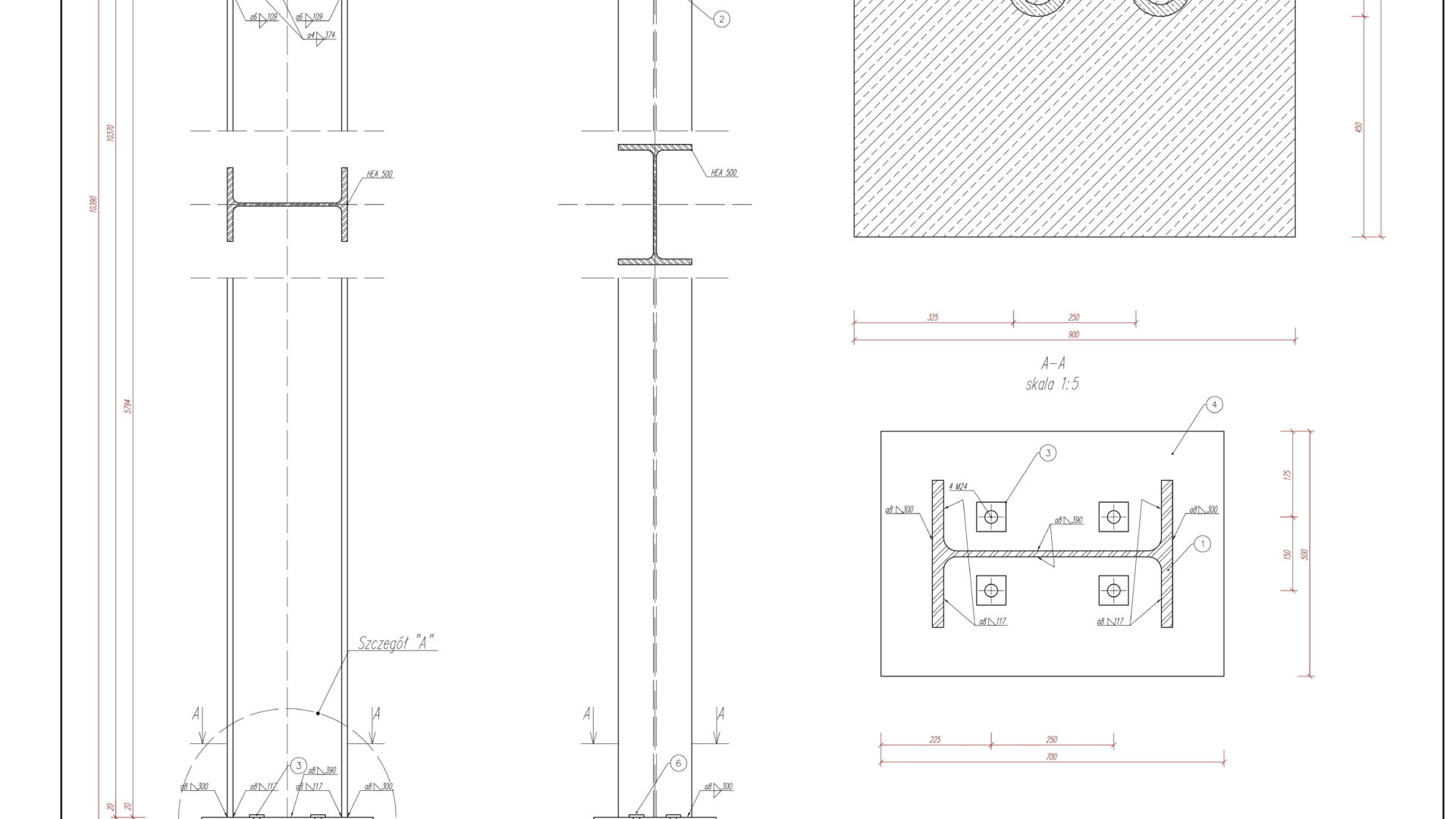
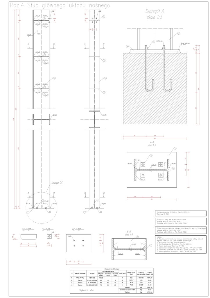
Hala stalowa – słup