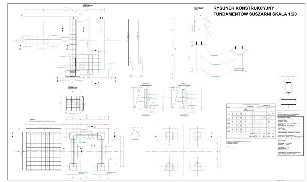
Suszarnia zboża – fundamenty