Portfolio

Poniżej przedstawiam rysunki, które osobiście wykonałem

Dom jednorodzinny – słup żelbetowy
Dom jednorodzinny – słup żelbetowy
Budynki mieszkalneŻelbet
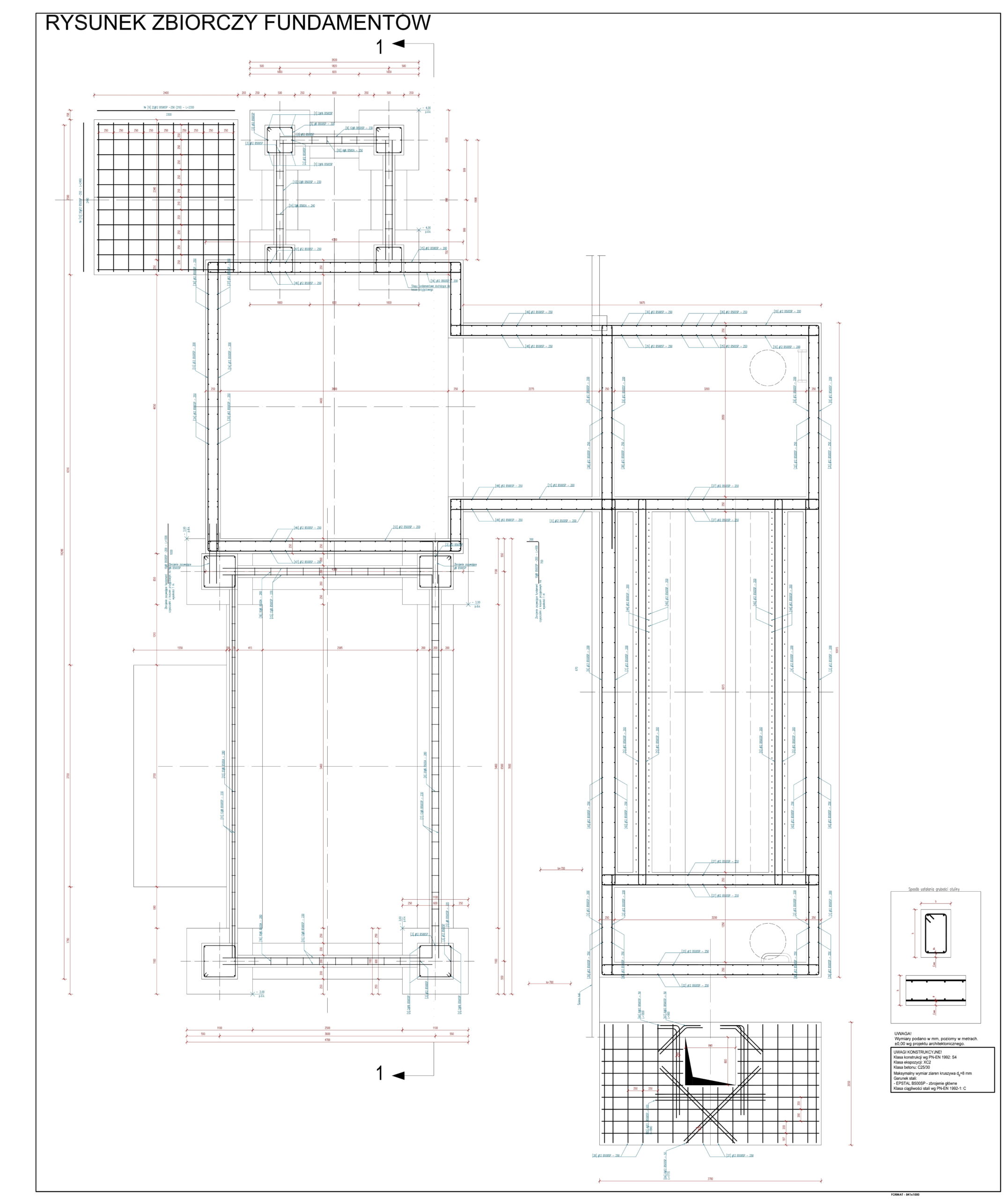
Dom jednorodzinny – rzut fundamentów
Dom jednorodzinny – rzut fundamentów
Budynki mieszkalneŻelbet
Hala stalowa – rygiel dachowy
Hala stalowa – rygiel dachowy
Budynki użyteczności publicznejStal
Hala stalowa – detal połączenia rygla ze słupem
Hala stalowa – detal połączenia rygla ze słupem
Budynki użyteczności publicznejStal
Dom jednorodzinny – nadproża żelbetowe
Dom jednorodzinny – nadproża żelbetowe
Budynki mieszkalneŻelbet
Dom jednorodzinny – rzut więźby dachowej
Dom jednorodzinny – rzut więźby dachowej
Budynki mieszkalneDrewno
Dom jednorodzinny – rzut stropu
Dom jednorodzinny – rzut stropu
Budynki mieszkalneDrewno
Wiata (zadaszenie śmietnika) – rzut konstrukcji parteru
Wiata (zadaszenie śmietnika) – rzut konstrukcji parteru
BudowleStal
Wiata (zadaszenie śmietnika) – rzut konstrukcji dachu
Wiata (zadaszenie śmietnika) – rzut konstrukcji dachu
BudowleStal
Budynek mieszkalny wielorodzinny – nadproże stalowe
Budynek mieszkalny wielorodzinny – nadproże stalowe
Budynki mieszkalneStal
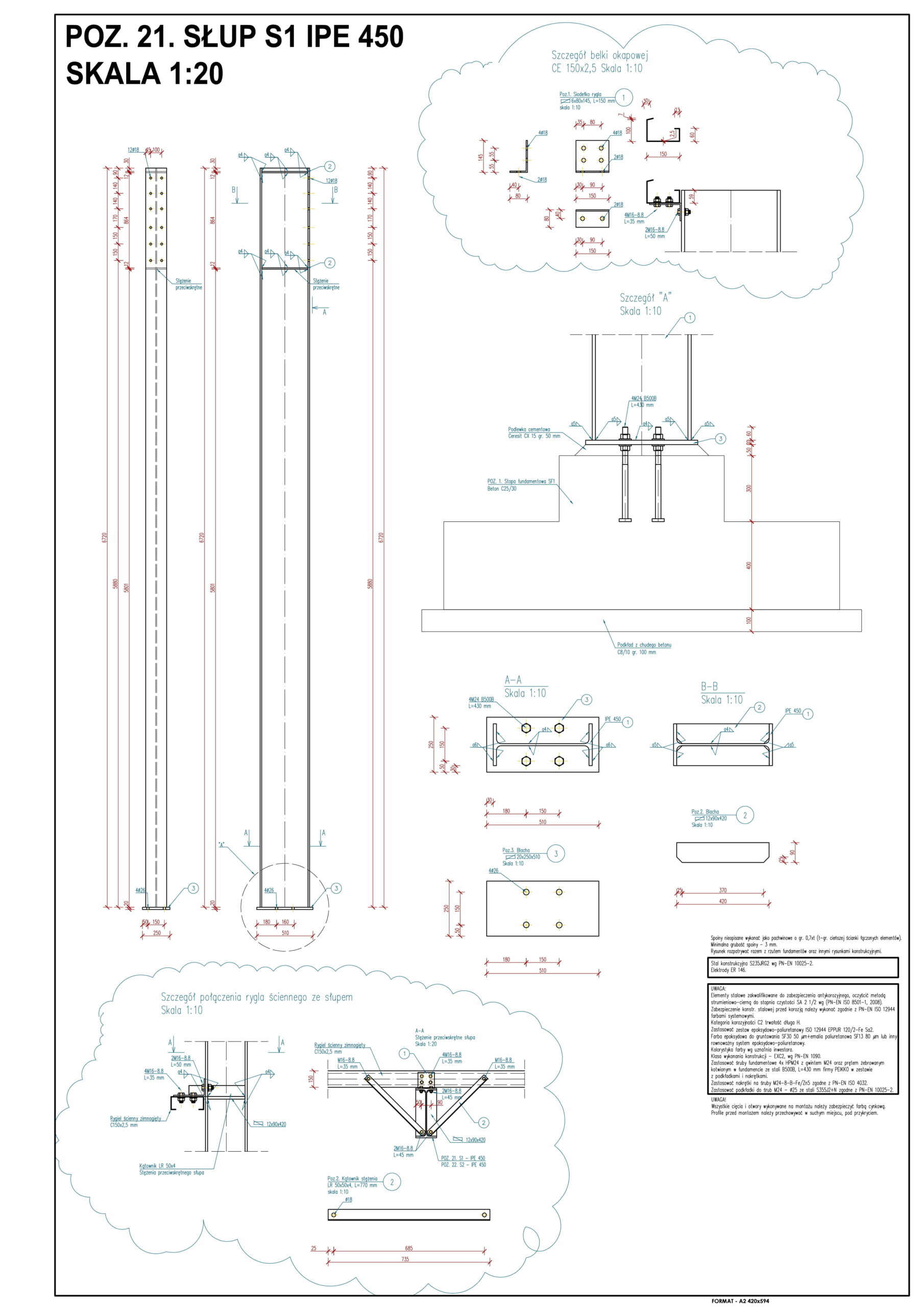
Hala stalowa – słup
Hala stalowa – słup
Budynki użyteczności publicznejStal
Hala stalowa – dźwigar kratowy
Hala stalowa – dźwigar kratowy
Budynki użyteczności publicznejStal
Dom szkieletowy drewniany – kotwienie ściany zewnętrznej
Dom szkieletowy drewniany – kotwienie ściany zewnętrznej
Budynki mieszkalneDrewno
Dom jednorodzinny – rzut więźby dachowej
Dom jednorodzinny – rzut więźby dachowej
Budynki mieszkalneDrewno
Hala stalowa – stopa fundamentowa
Hala stalowa – stopa fundamentowa
Budynki użyteczności publicznejŻelbet
Dom jednorodzinny – podciąg
Dom jednorodzinny – podciąg
Budynki mieszkalneŻelbet
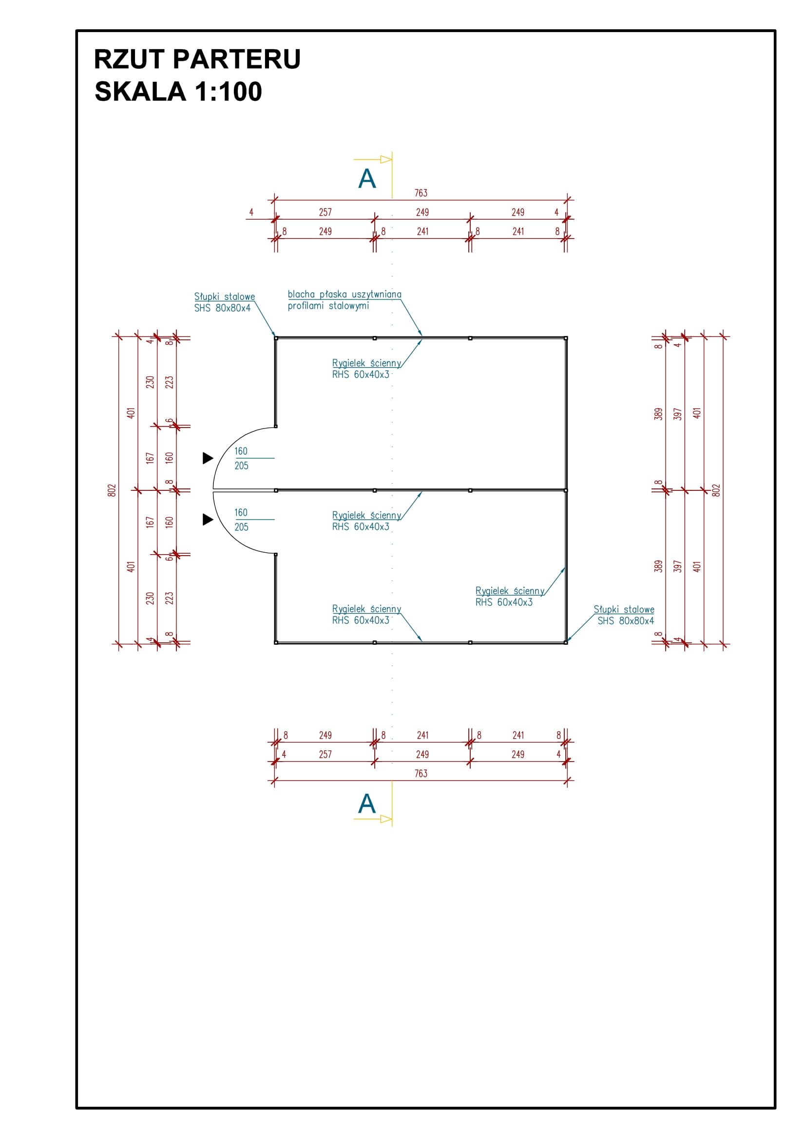
Hala stalowa – widok konstrukcji ścian
Hala stalowa – widok konstrukcji ścian
Budynki użyteczności publicznejStal
Hala stalowa – rzut konstrukcji dachu
Hala stalowa – rzut konstrukcji dachu
Budynki użyteczności publicznejStal
Dom jednorodzinny – rzut więźby dachowej
Dom jednorodzinny – rzut więźby dachowej
Budynki mieszkalneDrewno
Dom jednorodzinny – rzut stropu
Dom jednorodzinny – rzut stropu
Budynki mieszkalneDrewno
Dom jednorodzinny – rzut więźby dachowej
Dom jednorodzinny – rzut więźby dachowej
Budynki mieszkalneDrewno
Dom jednorodzinny – wiązar drewniany
Dom jednorodzinny – wiązar drewniany
Budynki mieszkalneDrewno
Czyszczalnia i suszarnia zboża – rzut fundamentów
Czyszczalnia i suszarnia zboża – rzut fundamentów
BudowleŻelbet
Suszarnia zboża – fundamenty
Suszarnia zboża – fundamenty
BudowleŻelbet
Czyszczalnia zboża – fundamenty
Czyszczalnia zboża – fundamenty
BudowleŻelbet
Hala stalowa – słup
Hala stalowa – słup
Budynki użyteczności publicznejStal
Hala stalowa – dźwigar kratowy
Hala stalowa – dźwigar kratowy
Budynki użyteczności publicznejStal
Hala stalowa – rygiel dachowy
Hala stalowa – rygiel dachowy
Budynki użyteczności publicznejStal
Dom jednorodzinny – rzut stropu
Dom jednorodzinny – rzut stropu
Budynki mieszkalneŻelbet
Dom jednorodzinny – detale fundamentów
Dom jednorodzinny – detale fundamentów
Budynki mieszkalneŻelbet
Budynek biurowy – belka żelbetowa
Budynek biurowy – belka żelbetowa
Budynki użyteczności publicznejŻelbet
Budynek biurowy – belka żelbetowa
Budynek biurowy – belka żelbetowa
Budynki użyteczności publicznejŻelbet
Hala stalowa – dźwigar kratowy
Hala stalowa – dźwigar kratowy
Budynki użyteczności publicznejStal
Budynek mieszkalny – rysunek warsztatowy krokwi nr 2
Budynek mieszkalny – rysunek warsztatowy krokwi nr 2
Budynki mieszkalneDrewno
Budynek mieszkalny – rysunek warsztatowy krokwi
Budynek mieszkalny – rysunek warsztatowy krokwi
Budynki mieszkalneDrewno
Budynek gospodarczy o konstrukcji stalowej – widok ścian
Budynek gospodarczy o konstrukcji stalowej – widok ścian
Budynki gospodarczeStal
Budynek gospodarczy o konstrukcji stalowej – rzut dachu
Budynek gospodarczy o konstrukcji stalowej – rzut dachu
Budynki gospodarczeStal
Hala stalowa – stopa fundamentowa
Hala stalowa – stopa fundamentowa
Budynki użyteczności publicznejŻelbet
Hala stalowa – detale połączeń
Hala stalowa – detale połączeń
Budynki użyteczności publicznejStal
Hala stalowa – słup
Hala stalowa – słup
Budynki użyteczności publicznejStal
Hala stalowa – rygiel dachowy
Hala stalowa – rygiel dachowy
Budynki użyteczności publicznejStal
Dom szkieletowy drewniany – konstrukcja parteru
Dom szkieletowy drewniany – konstrukcja parteru
Budynki mieszkalneDrewno
Dom szkieletowy drewniany – fundamenty
Dom szkieletowy drewniany – fundamenty
Budynki mieszkalneŻelbet
Dom szkieletowy drewniany – więźba dachowa
Dom szkieletowy drewniany – więźba dachowa
Budynki mieszkalneDrewno
Dom szkieletowy drewniany – płyta fundamentowa
Dom szkieletowy drewniany – płyta fundamentowa
Budynki mieszkalneŻelbet
Dom szkieletowy drewniany – detale
Dom szkieletowy drewniany – detale
Budynki mieszkalneDrewno
Dom szkieletowy drewniany – widok ścian
Dom szkieletowy drewniany – widok ścian
Budynki mieszkalneDrewno
Dom szkieletowy drewniany – konstrukcja parteru
Dom szkieletowy drewniany – konstrukcja parteru
Budynki mieszkalneDrewno
Dom szkieletowy drewniany – detale połączeń
Dom szkieletowy drewniany – detale połączeń
Budynki mieszkalneDrewno
Dom jednorodzinny – podciąg
Dom jednorodzinny – podciąg
Budynki mieszkalneŻelbet
Dom jednorodzinny – konstrukcja stropu drewnianego
Dom jednorodzinny – konstrukcja stropu drewnianego
Budynki mieszkalneDrewno
Dom  jednorodzinny – ściana szczytowa
Dom jednorodzinny – ściana szczytowa
Budynki mieszkalneŻelbet
Dom jednorodzinny – więźba dachowa
Dom jednorodzinny – więźba dachowa
Budynki mieszkalneDrewno
Dom szkieletowy drewniany – konstrukcja dachu
Dom szkieletowy drewniany – konstrukcja dachu
Budynki mieszkalneDrewno
Dom szkieletowy drewniany – widok ścian
Dom szkieletowy drewniany – widok ścian
Budynki mieszkalneDrewno
Sala sportowa – fundamenty
Sala sportowa – fundamenty
Budynki użyteczności publicznejŻelbet
Sala sportowa – dach
Sala sportowa – dach
Budynki użyteczności publicznejDrewno